Oasis urbano

Edificio de viviendas - Cornellá

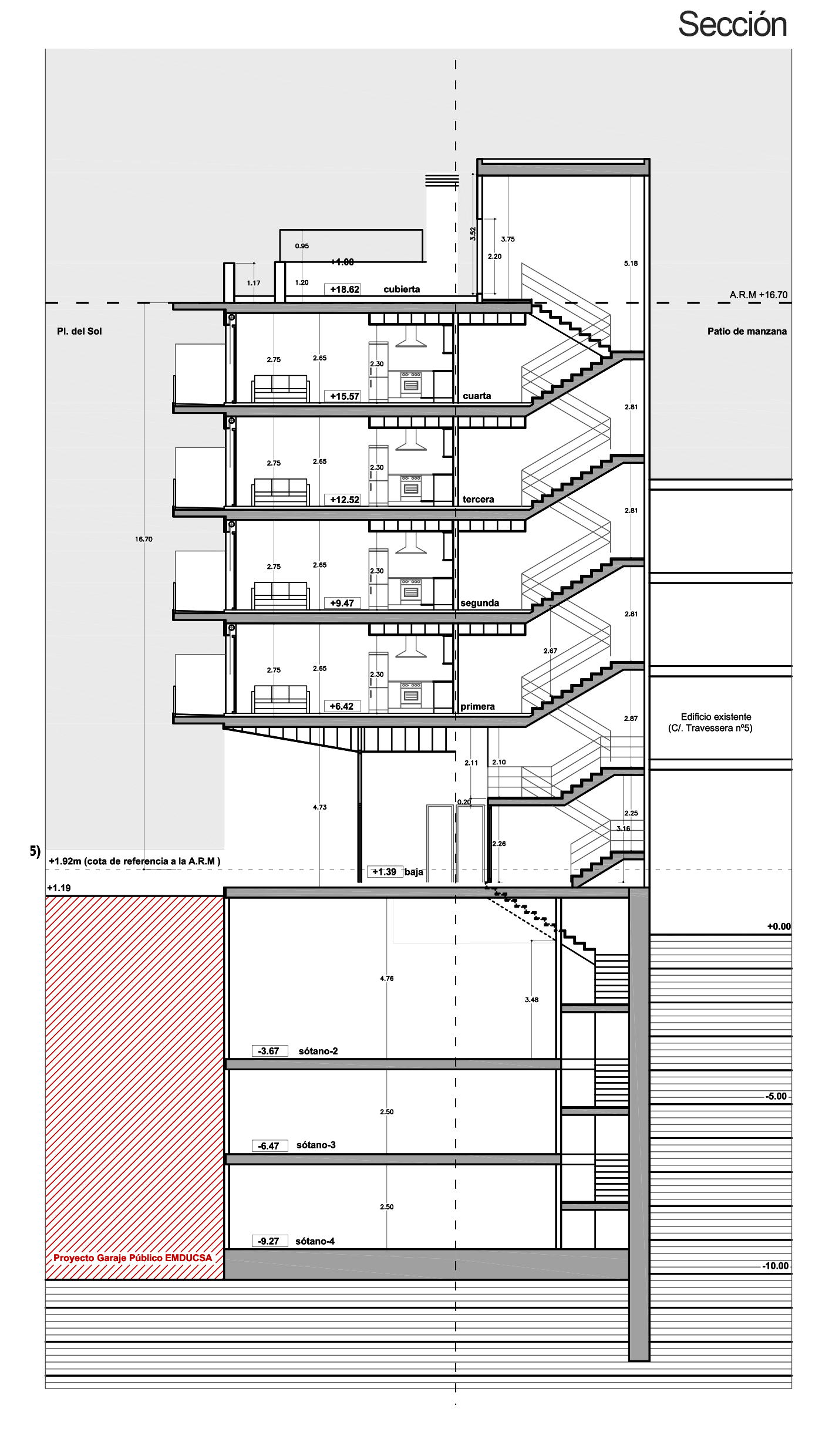
4.162 m2 - 24viv - 57 ppark - 3 sótanos

La ubicación excepcional de este proyecto requería hacer algo diferente, con presencia y que acompañara al parque que iba a hacer el ayuntamiento justo enfrente, del que compartíamos accesos subterráneos, 3 plantas, para los coches. La fachada ventilada se dividió en 3 planos, uno principal que daba a la plaza donde colgaban los balcones y los otros dos que surgen al doblarse en la esquina de la calle. Pretendimos hacer la cubierta del edificio ajardinada con una piscina, que sí se hizo, como continuación y reflejo del parque y su vegetación.